Así será la nueva uci pediátrica del hospital Infantil de Zaragoza: ocho 'boxes', garantía de privacidad para las familias y fecha de apertura
La unidad actual está en el edificio general del Servet, adonde se trasladó por falta de camas y espacios

Acceso principal al hospital Infantil de Zaragoza, en una imagen de archivo. / Jaime Galindo.

El inicio inminente en este mes de marzo de las obras de la nueva uci pediátrica en el hospital Infantil de Zaragoza no solo va a suponer disponer de un espacio moderno y renovado, sino que va a garantizar la privacidad de los pacientes y sus familias y, sobre todo, la humanización en la atención en un momento tan complicado. Puede resultar incomprensible que una unidad tan crítica como es la uci no garantice estos principios de asistencia, pero es la realidad en Aragón desde noviembre de 2022. Fue entonces cuando la uci pediátrica se trasladó al edificio general del Miguel Servet ante la falta de camas, de espacio y de todo en general. La decisión, en principio, iba a ser temporal. Sin embargo, desde entonces han pasado más de tres años en los que se han tenido que compartir estancias.
Familias y profesionales han reclamado con insistencia volver a su lugar de origen con una instalación totalmente renovada y espacios individualizados. Ese deseo ya está un poco más cerca. De hecho, los trabajos comienzan ya esta semana y si los plazos se cumplen, la nueva uci pediátrica del Infantil estará terminada a mediados de septiembre. Según consta en el expediente de contratación de la obra, firmado en octubre de 2025, la ejecución tiene un plazo de cinco meses y debe comenzar este mes de marzo.

Un momento del traslado de la uci pediátrica del Infantil al Servet, en noviembre de 2022. / EL PERIÓDICO
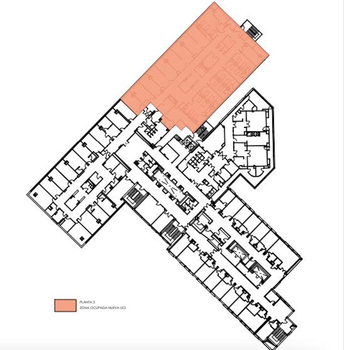
Las obras han sido adjudicadas a la empresa Cieca S.L. por casi dos millones de euros y se basarán en el proyecto básico redactado en noviembre de 2025 por Inova Ingenieros. La superficie prevista para la reubicación de la nueva uci es un ala de la planta tercera de Infantil, una zona actualmente ocupada por habitaciones de hospitalización de Cirugía Pediátrica, que serán trasladadas a la zona de Lactantes mientras duren las obras.
En detalle, el proyecto contempla ocho boxes individuales, tres de ellos adaptados para su utilización en tratamientos de Hemodiálisis. También dos boxes individuales para enfermos aislados, con acceso por exclusas y puertas herméticas. Todo tendrán luz natural. Otra de las novedades, muy demandada, será un despacho de información para los familiares, con acceso independiente, garantizando así la privacidad que en la uci pediátrica actual no se tiene porque el espacio es compartido. En el proyecto también figuran despachos de trabajo y reuniones de personal, zona de descanso y dormitorio de médico de guardia.
Todo en un mismo edificio
Otra de las grandes ventajas, sobre todo para el personal sanitario, es que la nueva uci pediátrica estará en el hospital Infantil, conectada directamente con las plantas y unidades de Cirugía Pediátrica, Oncopedriatría o los quirófanos. «En la actualidad, obliga a coger dos ascensores de traslado desde quirófano con un desplazamiento de cuatro plantas de descenso y otras cuatro plantas de ascenso, con un mayor riesgo de incidencias en los traslados y de demora en su asistencia», reza en al documentación pública de los pliegos.

La zona anaranjada es la que ocupará la nueva uci pediátrica, en la tercera planta del Infantil. / Inova Ingenieros
Las obras van a conllevar la demolición de todos los falsos techos, pavimentos, carpintería, tabiquería, mostradores de control y el desmontaje de los aparatos sanitarios existentes. Para el Salud, la reubicación de la uci pediátrica «es uno de los puntos críticos del Infantil que debe resolverse de manera prioritaria y urgente», según reza en la documentación. Esta unidad es referencia para los niños y niñas de Aragón, La Rioja y Soria. En ella, cada año se dan unos 450 ingresos, con estancias medias de entre 4 y 5 días. También hay estancias de varias, sobre todo en pacientes oncológicos y en casos de postquirúrgicos complejos.
Las obras de la uci pediátrica en el Infantil forman parte del gran plan de transformación del hospital Miguel Servet, para el cual se han invertido más de 11 millones de euros para 11 actuaciones. Algunas de ellas ya se han estrenado, como la nueva zona de esterilización, las nuevas cabinas de aislamiento Hematología o las obras en Urgencias. Pendientes quedan las nuevas cabinas para el trasplante de médula -que está en marcha- o la reforma de las consultas de Neuropediatría.
Suscríbete para seguir leyendo
- Zaragoza estrenará una nueva parada de bus en el mes de abril: sus líneas cuentan con más de 676.000 viajeros
- El 'otro' colegio de Natalia Chueca, un centro educativo concertado, católico y emblema de Zaragoza: 'Profesores implicados y formados
- Un grupo automovilístico italiano abrirá en Zaragoza su primer centro de operaciones en España
- Figari, el restaurante de Zaragoza donde probar calamares y guisos al estilo italiano: 'Se pueden hacer otras cosas que no sean pasta y pizza
- Nacho Rubio, el bombero de Zaragoza que saltó de la portada del calendario a los escenarios como 'stripper': 'Me encontraba con gente a la que conocía
- El chef de un restaurante de Zaragoza carga contra los que se quejan del precio de los menús: 'La gente no sabe lo que cuestan las cosas
- Una carnicería con más de 120 años de historia abre su propia hamburguesería en un pueblo de Zaragoza: 'Nos gusta mucho el barro
- David Blázquez, tras la nueva inversión milmillonaria de Amazon en Aragón: 'Hay alcaldes que reconocen que llevaban años esperando nuestra llamada