Urbanismo
Macrooperación urbanística en Zaragoza: el ayuntamiento planea vender dos parcelas en Vía Hispanidad y Montecanal para construir hasta 470 pisos y 100 chalets
Se trata de los suelos que ahora ocupan los campos de fútbol del Hernán Cortés y el skate park y de una parcela situada frente a la cooperativa de taxis en Gómez Laguna

Skatepark situado junto a Vía Hispanidad y el Pirulí de fondo / JAIME GALINDO

Recalificación a la vista. El Gobierno municipal al frente del Ayuntamiento de Zaragoza va a impulsar dos modificaciones del Plan General de Ordenación Urbana para generar en la ciudad dos nuevas parcelas residenciales y, de paso, ingresar 67 millones de euros con los que financiar inversiones previstas en los próximos años. Se trata, por un lado, de los suelos que actualmente ocupan el 'skate park' y los campos de fútbol del Hernán Cortes en Vía Hispanidad y, por otro, de un terreno situado entre la prolongación de Gómez Laguna y la calle San Juan Bautista de Lasalle.
Hace tan solo diez días, el Ayuntamiento de Zaragoza informaba de que había impulsado el traslado del campo de fútbol municipal García Traid, hogar del Hernán Cortés, a unos terrenos situados entre Montecanal y Arcosur. Esta operación avanzaba ya entonces los planes del Gobierno municipal, puesto que se dejaba libre una pastilla en una zona de la ciudad, entre Vía Hispanidad y Aragonia, muy cotizada entre las constructoras.
Pues bien, fuentes del área de Urbanismo explican ahora que el objetivo es enajenar (vender) esos suelos junto con los del 'skate park' a través de una licitación por precio (una subasta) para poder ingresar unos 50 millones de euros. Allí cabrán cientos de nuevas viviendas, aunque no comenzarán a construirse, eso sí, hasta que el Hernán Cortés haya inaugurado sus nuevas instalaciones en Arcosur.
Los usuarios del 'skate park' tampoco se quedarán huérfanos de equipamiento. El Ayuntamiento de Zaragoza plantea trasladar este recinto deportivo al aparcamiento que hay situado en la entrada del parque del Canal, en la avenida Gómez Laguna y a diez minutos andando de las actuales instalaciones de Vía Hispanidad. El 'skate park' aquí será más grande y, hasta que no esté construido el nuevo, no se demolerá el actual.

Plano del futuro 'skate park' en el parque del Canal. / AYUNTAMIENTO DE ZARAGOZA
Hasta 470 viviendas libres
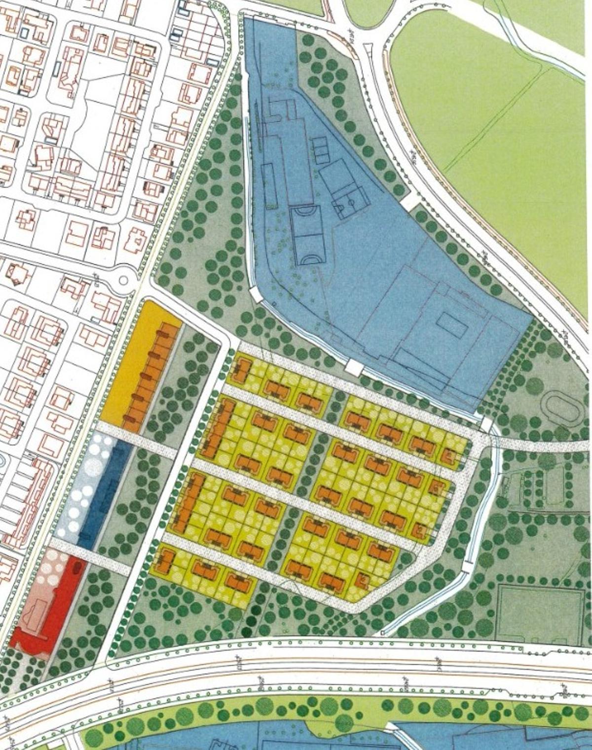
La parcela que quedará libre servirá para construir entre 330 y 470 viviendas libres -40.000 metros cuadrados edificables en total-, que estarán rodeadas de una zona verde de 6.278 metros cuadrados de zonas verdes. Con los 50 millones que el ayuntamiento planea ingresar se financiará el traslado y construcción del nuevo 'skate park, del campo de fútbol municipal García Traid y otros tantos equipamientos y reformas de calles ya anunciadas para los próximos años. Cabe recordar que solo con las ya anunciadas reformas de la avenida Valencia, la plaza San Miguel y las calles Coso, Doctor Iranzo, camino del Vado el consistorio tendrá que desembolsar 20,9 millones. Y hay otros muchos proyectos ya comprometidos, como la propia Romareda.
Será en enero cuando el Gobierno municipal inicie la tramitación de esta modificación del Plan General, en la comisión de Urbanismo de ese mes. Los planes del consistorio pasan por poder aprobar definitivamente esta recalificación a mediados de año, aunque todo dependerá de los inconvenientes que surjan por el camino y de las alegaciones que se presenten contra esta iniciativa. Sin embargo, en el plano político, el PP ya se ha asegurado los votos a favor de Vox, puesto que esta operación ha formado parte de la negociación de los presupuestos. Por tanto, en el salón de plenos no habrá problemas para que salga adelante.

Así quedarán ordenados los suelos del campo de fútbol García Traid y el 'skate park'. / AYUNTAMIENTO DE ZARAGOZA
No obstante, habrá a quien en la casa consistorial que esta modificación del Plan General le suene de algo, pues se trata de una adaptación de la que ya propuso en 2019 el entonces alcalde, Jorge Azcón, aunque entonces con un propósito bien distinto: financiar las obras de La Romareda cuando era el consistorio quien iba a asumir la inversión en solitario. Entonces, la portavoz del PSOE en el ayuntamiento, Pilar Alegría, rechazó esta propuesta y con el estallido del covid el plan acabó en un cajón. Ahora, los 50 millones se repartirán por toda la ciudad y no se quedarán en el distrito Universidad.
Pero esta es solo la primera parte de una macrooperación con la que el Gobierno municipal pretende cuadrar las cuentas y aumentar los ingresos del consistorio sin subir los impuestos pero desprendiéndose de patrimonio público de suelo municipal. La segunda pata de este plan pretende dar salida a una parcela situada entre la prolongación de Gómez Laguna y la calle San Juan Bautista de La Salle, justo en frente de la cooperativa de taxis y detrás de Pádel Zaragoza y el colegio de La Salle Santo Ángel.
Allí se plantea recalificar el suelo y venderlo para obtener unos ingresos que ascenderán hasta los 17 millones de euros. En este solar se generará suelo para levantar entre 70 y 100 viviendas unifamiliares, otras 30 viviendas de protección, un solar de equipamiento y otro destinado a usos terciarios, que debido a su cercanía al nuevo hospital de Quirón podrían albergar desde una residencia hasta un hotel, puesto que estos servicios complementarían los del centro hospitalario privado.

Ordenación propuesta de los suelos en los que se construrán chalets en la prolongación de Gómez Laguna. / AYUNTAMIENTO DE ZARAGOZA
Esta operación es algo más compleja a nivel jurídico y la modificación del plan general podría llevar un paso más lento que la de Vía Hispanidad. Son en total 51.886 metros cuadrados en los que se creará una urbanización de viviendas unifamiliares (cabrán entre 70 y 100 chalets) que será en la práctica una ampliación del barrio de Montecanal. Pero además se generará suelo para 30 VPA, los ya citados equipamientos y se mantendrá el colegio, el pádel y los terrenos plantados del Bosque de los Zaragozanos. También se crearán nuevas zonas verdes.
En esta pastilla se van a introducir también los 20.500 metros cuadrados de usos terciarios que se desligaron de la pastilla de La Romareda y que estaban en un limbo. En su momento, el Gobierno municipal preveía ingresar unos 15 millones, pero con su inclusión en esta jugada urbanística quedan agotados.
- La caída de un efectivo esencial para la supervivencia del Real Zaragoza: El paso atrás de El Yamiq
- El nuevo pulmón verde de Zaragoza da un paso más: ya se conoce quién diseñará el macroparque central de Arcosur
- El Casademont Zaragoza no puede fichar tras la marcha de Carla Leite
- El pequeño pueblo de Aragón donde vivió el cantante de Celtas Cortos y que inspiró ‘20 de abril’: “Me sentía tan a gusto allí”
- Primeras reacciones en los centros escolares de Zaragoza tras el caso del IES Ítaca: “Se cancelan las dos actividades extraescolares programadas”
- Más de 80 detenidos el último fin de semana en Zaragoza
- El exentrenador del Real Zaragoza Natxo González recibe el alta médica: su equipo ha conseguido el ascenso a Primera RFEF
- El desconocido vínculo de Mikel Oyarzabal y Aragón: un precioso lugar que le pudo cambiar para siempre su carrera en la Real Sociedad
